产品介绍
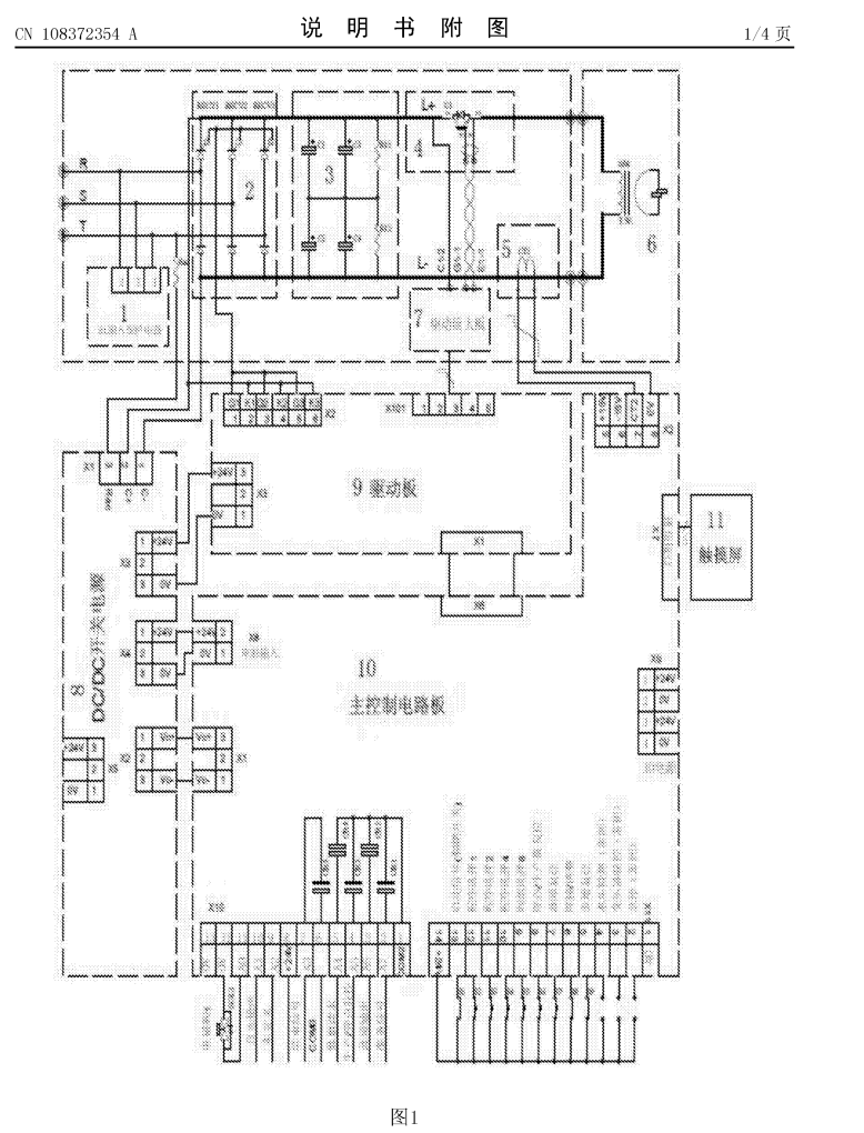
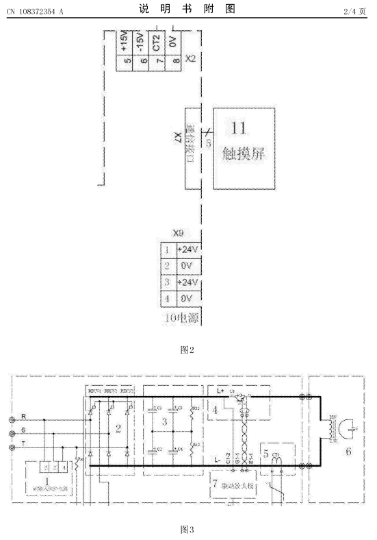
本产品涉及焊机技术领域,尤其是一种新型脉冲直流焊接电源,它包括RC三相输入防浪涌保护电路、三相半控整流桥、DC_LINK滤波储能回路、IGBT放电控制电路、放电电流检测板、焊接变压器、IGBT驱动放大回路、DC?DC开关电源电路、IGBT驱动电路及半控桥可控硅控制板、主控制板和触摸屏,实现闭环控制,保证焊接电流的设定值、实际值和反馈值三者一致,采用IGBT,由于IGBT的特性决定,只要在IGBT的G和E控制端,加入?8V左右的负电压,IGBT就可以可靠的关断;本发明的电容器组只是作为DC?LINK支撑作用,除非输入功率严重不足的情况才补偿到放电变压器中,故基本没有能量损失。
产品规格



